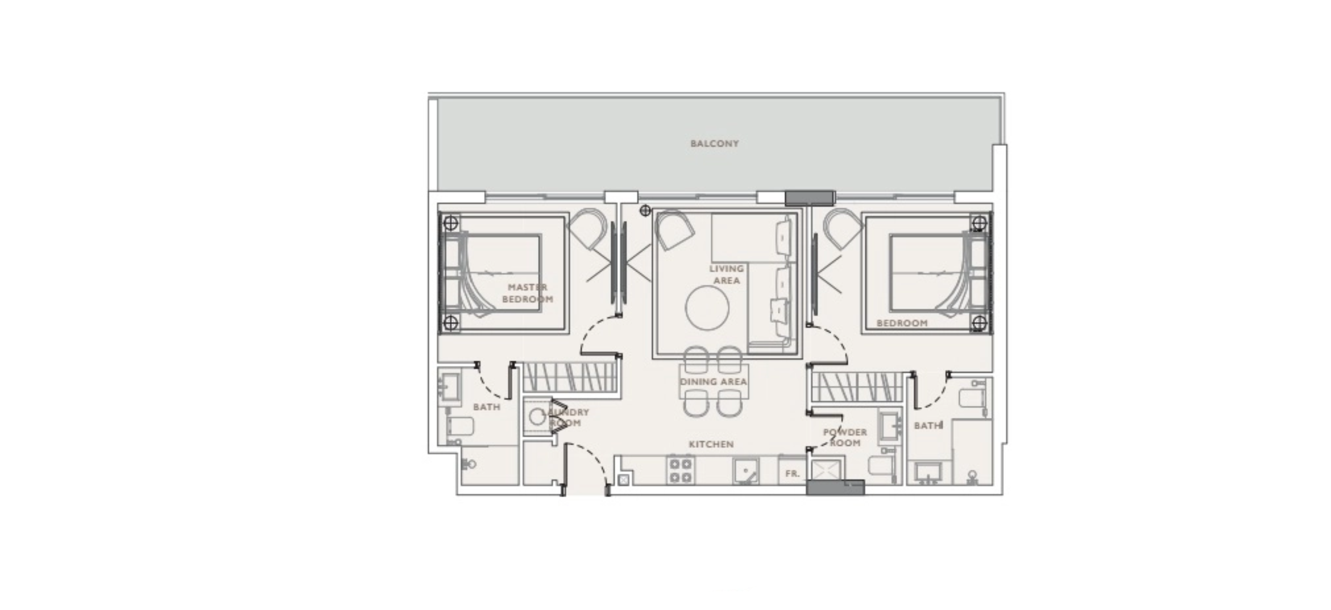
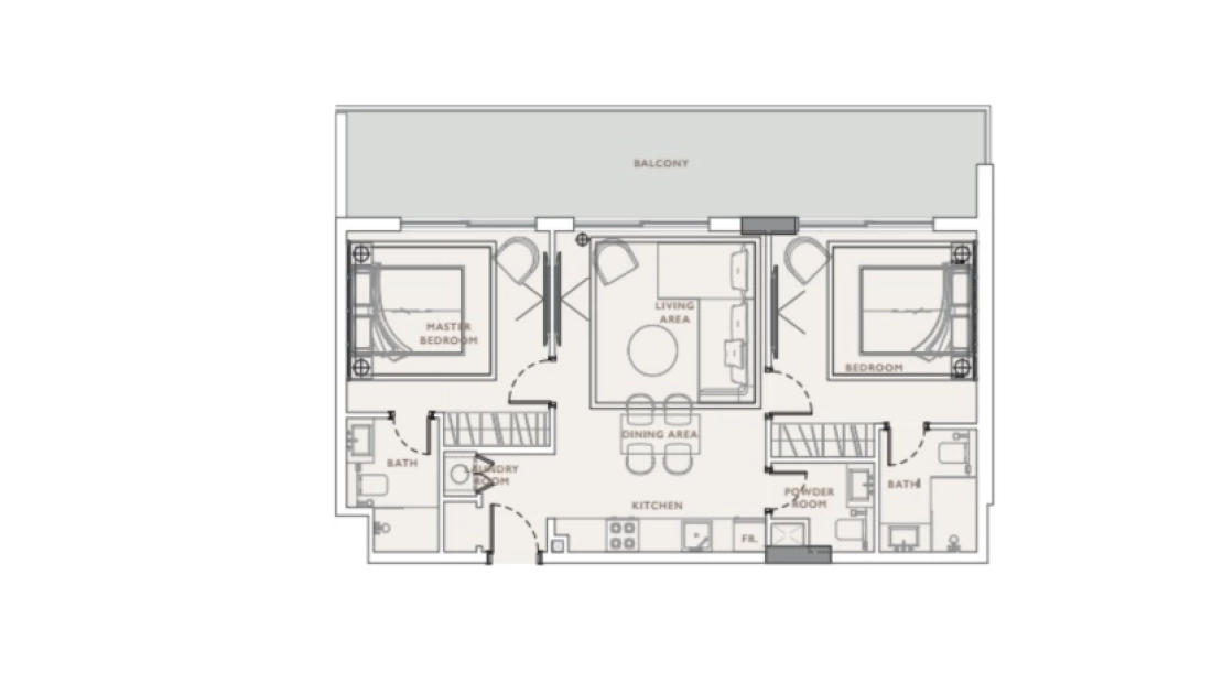
2-спальные апартаменты 110 кв.м. в ЖК Oakley Square Residences

ID объекта: 42021
2-спальные апартаменты 110 кв.м. в ЖК Oakley Square Residences элегантном и роскошном малоэтажном жилом комплексе, расположенный в популярном районе Jumeirah Village Circle
348800 110
от 348 800
от 3 171 / м²
О проекте
Рентабельность

Oakley Square Residences — это новый проект элегантного и роскошного малоэтажного жилого комплекса, расположенного в популярном районе Jumeirah Village Circle (JVC) в Дубае. Он спроектирован и воплощается в жизнь застройщиком Ellington Properties.

Уникальностью Oakley Square Residences является его элитарная камерность учтённая в проекте, элегантность деталей и максимальный комфорт для жителей, чтобы не покидая комплекс получить максимум удобств и удовольствия от жизни.

Планировка здания и резиденций включает в себя:

  • отделка из высококачественных материалов в нейтральных тонах;
  • открытая планировка;
  • кухни объединены со столовой зоной;
  • панорамные остекление и просторные балконы с видом на парк или город;
  • в некоторых резиденциях с 1 и 2 спальнями дополнительно предусмотрен кабинет;
  • 1 парковочное место на каждую резиденцию;
  • в жилом комплексе для жителей предусмотрено 7 лифтов.

Для собственников недвижимости в Oakley Square Residences предусмотрены следующие эксклюзивные удобства помимо основных:

  • два вестибюля с подвесными светильниками, панорамными окнами и комфортной зоной для отдыха и общения;
  • зарядная станция для электромобилей;
  • парковка для велосипедов;
  • общественная терраса;
  • детский бассейн;
  • кинотеатр;
  • корт для игры в падл;
  • зона с настольными играми;
  • лобби.

Становясь собственником объекта недвижимости в роскошном Oakley Square Residences в Дубае граждане иностранных государств получают возможность оформить в зависимости от стоимости приобретенной недвижимости визу сроком на 2 года или на 10 лет («Золотая виза») с правом последующего продления и наслаждаться жизнью в ОАЭ не тревожась о сроках пребывания на территории страны. Также собственник резиденции получает возможность при необходимости сдавать её в аренду и получать доход от своих вложений.

Показатели средней рентабельности инвестиций в данном проекте Oakley Square Residences составляет от 7%. С течением времени этот показатель будет только расти. На него оказывает влияние степень готовности объекта и уровень развития района. Для получения быстрого инвестиционного дохода можно выгодно перепродать недвижимость не дожидаясь завершения строительства. А также выгодно перепродать проект еще на стадии строительства и получить быстрый инвестиционный доход.

Наши эксперты помогут разобраться во всех волнующих вас вопросах и помогут в приобретении недвижимости в Дубае!

Показать

На текущий момент мы обновляем данные по этому проекту, они появятся в ближайшее время

Особенности
  • Балкон
  • Бассейн
  • Вид на город
  • Вид на набережную
  • Кафе и рестораны
  • Кондиционер
  • Лифт
  • Магазин
  • Мебель
  • Охрана
  • Панорамные окна
  • Парковка
  • Сад
  • СПА
  • Спортзал
  • Терраса
  • Услуги горничной

Расположение

Oakley Square Residences находится в удобной транспортной доступности на машине до:

  • аэропорта Дубая 20 – 25 минут;
  • районы Al Barsha South, Arjan-Dubailand, Motor City, Dubai Sports City и Dubai Production City 510 минут;
  • шоссе и улицы в непосредственной близости Assel Blvd, Lazuward N E и Bijada Blvd N.

В пешей доступности от Oakley Square Residences расположены следующие объекты социальной и транспортной инфраструктуры:

  • автобусные остановки JVC, Mirabella Villas 6 и JVC, Diamond Views 3 максимум в 10 минутах;
  • академия плавания Kafou Sport Academy – JVC 10 минут;
  • детские сады Green Roots Nursery Dubai и Ladybird Early Learning Center  8-10 минут;
  • супермаркет Smile On 10 минут;
  • медицинский центр Right Health Karama Medical Center 10 минут;
  • торговый центр Circle Mall в непосредственной близости.

В районе Jumeirah Village Circle располагается много досуговых и развлекательных заведений, а также ресторанов и кафе, до которых удобно добираться пешком или на машине буквально за пару минут.

25 минут
Аэропорт DXB
15 минут
Дубай Марина
20 минут
Пляж Джумейра
18 минут
ТЦ Дубай Молл
Карта
3D
Район проекта

Jumeirah Village Circle

Jumeirah Village Circle

Благоустроенный район с семейной атмосферой разработан одним из ведущих застройщиков, Nakheel Properties. Район в выгодном расположении в самом центре Дубая сочетает в себе стильные апартаменты, элитные виллы и роскошные таунхаусы.

Подробнее о районе
Jumeirah Village Circle

Фотогалерея

Порядок платежей

5%
первоначальный
взнос
40%
во время
строительства
55%
при передаче
ключей
Ellington Properties
Застройщик проекта

Ellington Properties

Ellington Properties

<span style="font-weight: 400">Ellington Properties – клиентоориентированный застройщик, один из крупнейших на рынке недвижимости Дубая и Арабских Эмиратов. Компания возводит уникальные объекты с безупречным по форме и содержанию архитектурным стилем, который удовлетворяет утончённые вкусы состоятельных клиентов. </span>

Подробнее о застройщике
Оставить заявку
на обратный звонок Свяжемся с вами в ближайшее
время для консультации

    Другие предложения в этом проекте
    Oakley Square Residences
    от 348 800 $
    2-спальные апартаменты 110 кв.м. в ЖК Oakley Square Residences

    2-спальные апартаменты 110 кв.м. в ЖК Oakley Square Residences элегантном и роскошном малоэтажном жилом комплексе, расположенный в популярном районе...

    110 м²
    1 спальня
    Jumeirah Village Circle
    Oakley Square Residences
    от 245 900 $
    1-спальные апартаменты 74 кв.м. в ЖК Oakley Square Residences

    1-спальные апартаменты 74 кв.м. в ЖК Oakley Square Residences элегантном и роскошном малоэтажном жилом комплексе, расположенный в популярном районе...

    74 м²
    1 спальня
    Jumeirah Village Circle
    Oakley Square Residences
    от 171 670 $
    Студия 47 кв.м. в ЖК Oakley Square Residences

    Студия 47 кв.м. в ЖК Oakley Square Residences элегантном и роскошном малоэтажном жилом комплексе, расположенный в популярном районе Jumeirah Village...

    47 м²
    1 спальня
    Jumeirah Village Circle
    Посмотреть все
    Что происходит с рынком Дубая прямо
    сейчас? Делимся аналитикой и
    прогнозами по основным районам
    Скачайте наш аналитический обзор
    "Карта рисков 2026"
    Скачать статью
    Предложения в других проектах
    Beach Mansion
    от 764 060 $
    2-спальные апартаменты 115 кв.м. в ЖК Beach Mansion

    2-спальные апартаменты 115 кв.м. в ЖК Beach Mansion элитном и потрясающим жилом комплексе состоящим из двух башен высотой

    115 м²
    2 спальни
    Emaar Beachfront
    DAMAC Bay 2 by Cavalli
    от 1 572 000 $
    3-спальные апартаменты 119 кв.м в ЖК DAMAC Bay 2 by Cavalli

    Просторные апартаменты площадью 119 кв.м с доступом к эксклюзивным удобствам от бренда Cavalli.

    119 м²
    3 спальни
    Dubai Harbour
    MAMA Residences
    от 400 680 $
    1-спальные апартаменты 61 кв.м. в ЖК Mama Residence

    1-спальные апартаменты 61 кв.м. в ЖК Mama Residence комплексе премиум класса под брендом Mama Shelter, который расположен в районе Business Bay

    61 м²
    1 спальня
    Business Bay
    Laurel Central Park
    от 408 385 $
    1-спальные апартаменты 63 кв.м. в ЖК Laurel Central Park

    1-спальные апартаменты 63 кв.м. в ЖК Laurel Central Park проекте элитного жилого комплекса средней этажности, который расположен в районе Downtown

    63 м²
    1 спальня
    Downtown Dubai
    Santorini DAMAC Lagoons
    от 653 000 $
    4-спальный таунхаус 213 кв.м в ЖК DAMAC Lagoons Santorini

    Роскошный 4-спальный таунхаус с удобствами премиум класса в ЖК DAMAC Lagoons Santorini, построенный вокруг прозрачной голубой лагуны.

    213 м²
    4 спальни
    DAMAC Lagoons
    Canal Crown de GRISOGONO
    от 305 000 $
    Студия 41 кв.м в ЖК Canal Crown de GRISOGONO

    Стильная студия в самом центре Дубая в ЖК Canal Crown de GRISOGONO с премиальными удобствами: СПА, бассейны, фитнес, кафе.

    41 м²
    1 спальня
    Business Bay
    District 11 Opal Gardens
    от 1 144 000 $
    4-спальный таунхаус 358 кв.м в ЖК District 11 Opal Gardens

    Роскошный таунхаус на 4 спальни в ЖК District 11 Opal Gardens с собственной голубой лагуной и пляжами.

    358 м²
    4 спальни
    Mohammed Bin Rashid City
    Sobha One
    от 782 000 $
    3-спальные апартаменты 178 кв.м в ЖК Sobha One

    Стильные апартаменты площадью 178 кв.м с доступом к удобствам премиум класса в ЖК Sobha One с wellness парком, семейным парком, фитнес-парком и...

    178 м²
    3 спальни
    Sobha Hartland
    Jomana
    от 2 185 000 $
    4-спальные апартаменты 311 кв.м в ЖК Jomana

    Роскошные апартаменты с 4 спальнями в ЖК Jomana от именитого застройщика Meraas, с премиальными удобствами.

    311 м²
    4 спальни
    Madinat Jumeirah Living
    Dorchester Collection
    от 18 641 909 $
    5-спальный пентхаус 1541 кв.м. в ЖК Dorchester Collection

    5-спальный пентхаус 1541 кв.м. в ЖК Dorchester Collection элитном и роскошном жилом комплексе расположенном в центральном престижном районе Business...

    1541 м²
    5 спален
    Business Bay