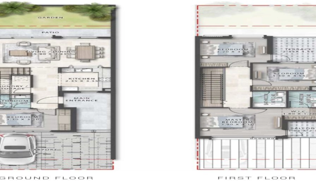
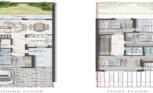
4-спальный таунхаус 211 кв.м в ЖК DAMAC Lagoons Marbella

ID объекта: 42667
Стильный 2-этажный таунхаус DAMAC Lagoons Marbella обладает площадью 211 кв.м и включает собственную террасу, балкон и частный сад.
517280 211
от 517 280
от 2 452 / м²
О проекте
Рентабельность

Элитный жилой комплекс DAMAC Lagoons Marbella создан легендарным застройщиком DAMAC. Таунхаусы были вдохновлены испанскими пейзажами и атмосферой средиземноморских курортов. Планируемая дата сдачи проекта — первый квартал 2026 года.

На территории Marbella будет построена центральная площадь Plaza de los Naranjos, украшенная апельсиновыми деревьями, ратушей и ресторанами, а также инновационные торговые центры. Здесь же будут расположены сады фламенко с множеством европейских цветов и лиственных деревьев, где профессиональные танцоры будут время от времени исполнять традиционные испанские танцы.

Ещё одной изюминкой Marbella станет женский центр Ladies Hub – Costa Del Sol, где для женской аудитории будут созданы тренажёрный зал и спа, салон красоты и комната для медитации.

Для собственников недвижимости в DAMAC Lagoons Marbella предусмотрены следующие премиальные удобства:

  • центральная площадь Plaza de los Naranjos с ратушей и первоклассными ресторанами;
  • инновационные торговые центры;
  • сады фламенко, где будут регулярно проходить выступления профессиональных танцевальных коллективов;
  • женский центр Ladies Hub – Costa Del Sol с современным тренажерным залом, спа, салоном красоты и зоной для медитации;
  • сад оливковых деревьев, населенный различными птицами европейских пород, – помимо прекрасного места для отдыха в кругу семьи, он станет живописной площадкой для проведения свадебных церемоний.

Становясь собственником объекта недвижимости в роскошном DAMAC Lagoons Marbella в Дубае граждане иностранных государств получают возможность оформить в зависимости от стоимости приобретенной недвижимости визу сроком на 2 года или на 10 лет («Золотая виза») с правом последующего продления и наслаждаться жизнью в ОАЭ не тревожась о сроках пребывания на территории страны. Также собственник таунхауса получает возможность при необходимости сдавать его в аренду и получать доход от своих вложений.

Показатели средней рентабельности инвестиций в DAMAC Lagoons Marbella составляет от 6%. С течением времени этот показатель будет только расти. Для получения быстрого инвестиционного дохода можно выгодно перепродать недвижимость не дожидаясь завершения строительства. А также выгодно перепродать проект еще на стадии строительства и получить быстрый инвестиционный доход.

Наши эксперты помогут разобраться во всех волнующих вас вопросах и помогут с приобретением недвижимости в Дубае!

Показать

На текущий момент мы обновляем данные по этому проекту, они появятся в ближайшее время

Особенности
  • Балкон
  • Бассейн
  • Детская площадка
  • Кафе и рестораны
  • Магазин
  • Мебель
  • Охрана
  • Павильон для пикника
  • Панорамные окна
  • Парковка
  • Сад
  • СПА
  • Спортзал
  • Спортивные площадки
  • Терраса
  • Частный пляж

Расположение

DAMAC Lagoons Marbella находится в удобной транспортной доступности на машине до:

  • аэропорта Dubai International — 30 минут;
  • ТЦ Mall of the Emirates — 25 минут;
  • школы Jebel Ali — 5 минут;
  • медицинского центра Aster — 9 минут.

DAMAC Lagoons задумано как  семейно-ориентированное сообщество с полноценной инфраструктурой. В 15 – 25 минутах езды резидентам Marbella доступны:

  • чемпионское поле для гольфа Trump International Golf Club;
  • торговый центр The Town Mall;
  • традиционный арабский рынок The Ranches Souk;
  • центр верховой езды Dubai Polo & Equestrian Club;
  • сад Dubai Miracle Garden, где собрано более 50 млн цветущих растений;
  • тематическая ярмарка Global Village, регулярно проходящая в эмирате с ноября по апрель.
40 минут
Аэропорт DXB
30 минут
Дубай Марина
35 минут
Пляж Джумейра
30 минут
ТЦ Дубай Молл
Карта
3D
Район проекта

DAMAC Lagoons

DAMAC Lagoons

Окунитесь в атмосферу Средиземноморья вместе с DAMAC Lagoons. Район расположен в тихом и уединенном месте, при этом обладает транспортным сообщением и развитой инфраструктурой.

Подробнее о районе
DAMAC Lagoons

Фотогалерея

Порядок платежей

5%
первоначальный
взнос
40%
во время
строительства
55%
при передаче
ключей
DAMAC Properties
Застройщик проекта

DAMAC Properties

DAMAC Properties

DAMAC — один из крупных застройщиков на Ближнем Востоке с 20-летним опытом. Компания активно реализует проекты не только в ОАЭ, но и на международном рынке: в Саудовской Аравии, Иордании, Ливане, Катаре, Турции и Великобритании. DAMAC Properties — лидер рынка по застройке ЖК премиум-класса, масштабных торговых и рекреационных центров в Дубае.

Подробнее о застройщике
Оставить заявку
на обратный звонок Свяжемся с вами в ближайшее
время для консультации

    Другие предложения в этом проекте
    DAMAC Lagoons Marbella
    от 762 300 $
    5-спальный таунхаус 314 кв.м в ЖК DAMAC Lagoons Marbella

    Просторный 3-этажный таунхаус на 5 спален в ЖК DAMAC Lagoons Marbella обладает площадью 314 кв.м и включает собственную террасу, балкон, частный...

    314 м²
    5 спален
    DAMAC Lagoons
    DAMAC Lagoons Marbella
    от 517 280 $
    4-спальный таунхаус 211 кв.м в ЖК DAMAC Lagoons Marbella

    Стильный 2-этажный таунхаус DAMAC Lagoons Marbella обладает площадью 211 кв.м и включает собственную террасу, балкон и частный сад.

    211 м²
    4 спальни
    DAMAC Lagoons
    Посмотреть все
    Что происходит с рынком Дубая прямо
    сейчас? Делимся аналитикой и
    прогнозами по основным районам
    Скачайте наш аналитический обзор
    "Карта рисков 2026"
    Скачать статью
    Предложения в других проектах
    Holland Gardens
    от 191 000 $
    Студия 37 кв.м в ЖК Holland Gardens

    Стильные апартаменты в премиальном ЖК Holland Gardens с множеством дополнительных удобств, расположенные в тихом и спокойном комьюнити Town Square...

    37 м²
    1 спальня
    Town Square
    Sobha Seahaven
    от 866 000 $
    1-спальные апартаменты 80 кв.м в ЖК Sobha Seahaven

    Просторные 1-спальные апартаменты площадью 80 кв.м в Dubai Marina с непревзойденным панорамным видом на Арабский залив, Dubai Eye и Palm Jumeirah.

    80 м²
    1 спальня
    Dubai Marina
    Urban Oasis by Missoni
    от 1 807 860 $
    3-спальные апартаменты 247 кв.м. в ЖК Urban Oasis by Missoni

    3-спальные апартаменты 247 кв.м. в ЖК Urban Oasis by Missoni элитном жилом комплексе, расположенном в престижном районе Business Bay

    247 м²
    3 спальни
    Business Bay
    Sobha Estates
    от 6 203 000 $
    5-спальная вилла 784 кв.м в ЖК Sobha Estates

    Роскошная вилла площадью 784 кв.м в элитном ЖК Sobha Estates на территории частного коммьюнити Sobha Hartland 2.

    784 м²
    5 спален
    Sobha Hartland
    Nad Al Sheba Gardens
    от 2 358 277 $
    4-спальная трехэтажная вилла 476 кв.м. в ЖК Nad al Sheba Gardens

    4-спальная трехэтажная вилла 476 кв.м. в ЖК Nad al Sheba Gardens комплекс просторных таунхаусов и отдельных вилл, которые расположены в районе Nad...

    476 м²
    4 спальни
    Nad Al Sheba
    Da Vinci Tower by Pagani
    от 2 199 836 $
    2-спальные апартаменты 184 кв.м. в ЖК DaVinci Tower

    2-спальные апартаменты 184 кв.м. в ЖК DaVinci Tower элитном и эксклюзивном жилом комплексе, расположенном на набережной Дубайского канала в...

    184 м²
    2 спальни
    Business Bay
    Crest Grande
    от 375 300 $
    1-спальные апартаменты 67 кв.м в ЖК Crest Grande

    1-спальные апартаменты 67 кв.м в ЖК Crest Grande расположенным в элитном создаваемом районе Sobha Hartland

    67 м²
    1 спальня
    Sobha Hartland
    The Palm Tower
    от 530 959 $
    Студия 49 кв.м. в ЖК The Palm Tower

    Студия 49 кв.м. в ЖК The Palm Tower премиальном 52-этажном комплексе, который расположился на острове Palm Jumeirah

    49 м²
    1 спальня
    Palm Jumeirah
    Sobha One
    от 927 000 $
    4-спальные апартаменты 211 кв.м в ЖК Sobha One

    Просторные 4-спальные апартаменты в ЖК Sobha One с удобствами премиум класса, включая бассейн, фитнес-центр, кинотреатр и сад на крыше.

    211 м²
    4 спальни
    Sobha Hartland
    District 11 Opal Gardens
    от 2 067 500 $
    5-спальный таунхаус 647 кв.м в ЖК District 11 Opal Gardens

    Элитный таунхаус на 5 спален площадью 647 кв.м с частным доступом к голубой лагуне и песчаным пляжам.

    647 м²
    5 спален
    Mohammed Bin Rashid City