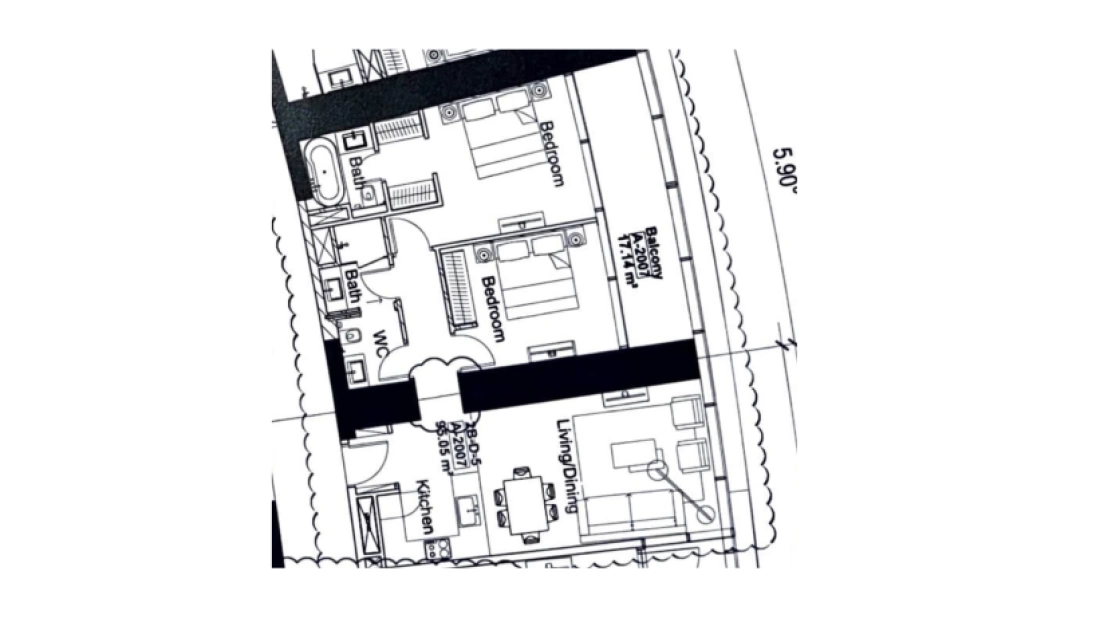
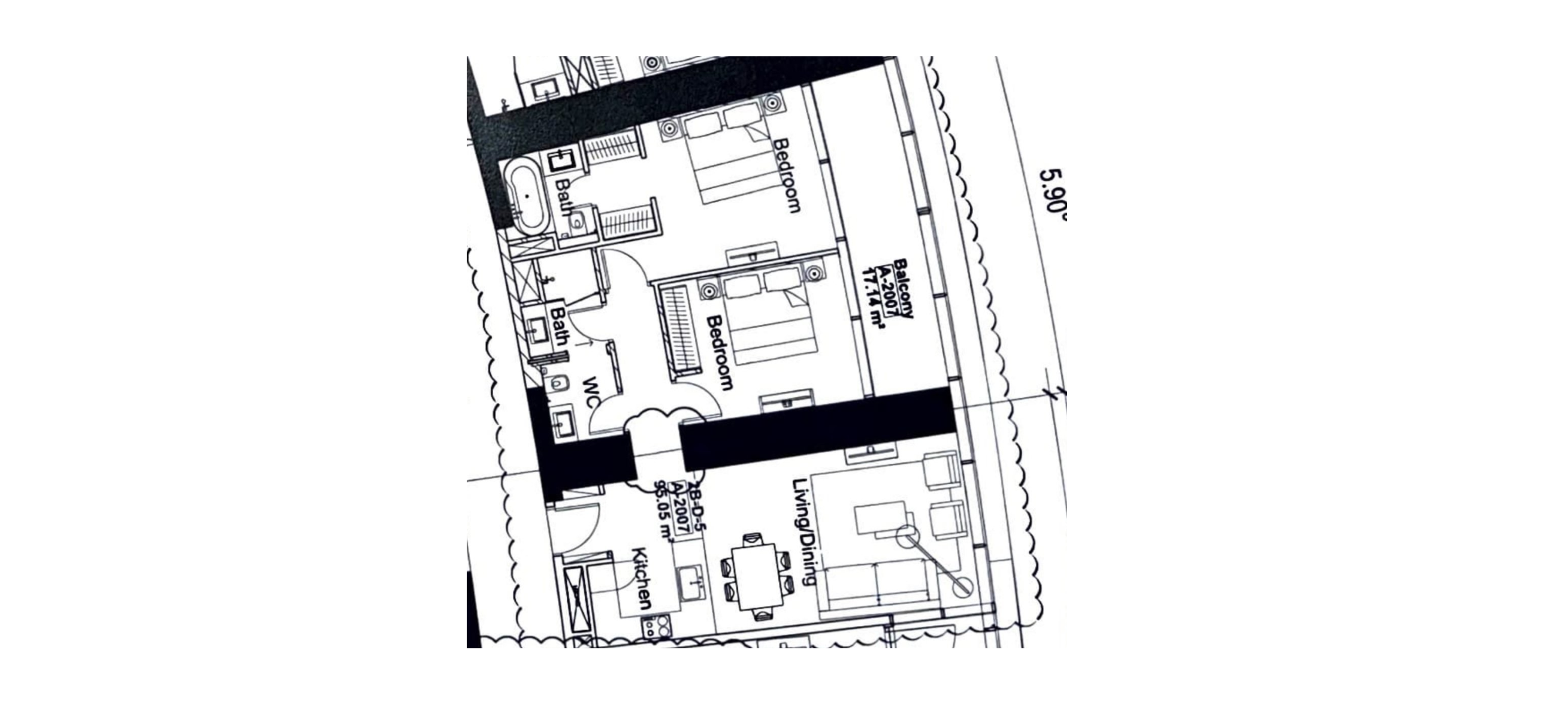
2-спальные апартаменты 95 кв.м. в ЖК Safa Two

ID объекта: 41453
2-спальные апартаменты 95 кв.м. в ЖК Safa Two элитном небоскрёбе, расположенном в районе Al Safa в Дубае
620500 95
от 620 500
от 6 532 / м²
О проекте
Рентабельность

Safa Two — это ультра эксклюзивный и элитный небоскрёб, который расположен в районе Al Safa в Дубае напротив от получившего огромную известность небоскрёба Safa One. Он спроектирован и воплощается в жизнь застройщиком DAMAC Properties в партнёрстве со всемирно известным ювелирным брендом de GRISOGONO.

Уникальностью Safa Two является футуристический проект небоскреба с панорамным остеклением, обтекаемой формой и плавными линиями изгибов. Архитектурная форма Safa Two воплощает в себе прекрасное рубиновое ожерелье, созданное основателем de GRISOGONO Фавазом Груоз. Также в центральной части фасада здания будет реализована концепция огромного рубина с ночным световым шоу, который будет символизировать связь с ювелирным брендом и тем самым будет реализовываться тема Ruby Gemstone. Safa One и Safa Two будут объединены в своеобразную арку благодаря электрической подвесной дороге с кабинками на верхних этажах небоскрёбов.

Планировка небоскрёба и резиденций включает в себя:

  • все резиденции будут с полным комплектом современной техники и эксклюзивной дизайнерской мебели, включая зеркальные перегородки и раздвижные барные стойки;
  • апартаменты в будут иметь просторные балконы;
  • резиденции с 2 и 3 спальнями предусматривает дополнительную комнату для обслуживающего персонала;
  • проект создан так, чтобы все резиденции комплекса получили потрясающие виды на Burj Al Arab, The World Island или Palm Jumeirah;
  • каждый этаж небоскрёба будет иметь просторные террасы с ландшафтными садами;
  • ещё одним эксклюзивом проекта станут экзотические висячие сады с режимом климат-контроля на крыше.

Для собственников недвижимости в Safa Two предусмотрены следующие эксклюзивные удобства помимо прочих:

  • 4 бассейна с искусственным пляжем, экзотическими пальмами, баром и зонами для отдыха и загара;
  • сапфировый бассейн infinity с прозрачным дном и бортами;
  • зона отдыха и смотровая площадка с видом на парк Safa Park и окрестности мегаполиса;
  • ландшафтный сад (самый высокий в мире!) с зонами для прогулок, ресторанами и обсерваторией.

Становясь собственником объекта недвижимости в роскошном Safa Two в Дубае граждане иностранных государств получают возможность оформить в зависимости от стоимости приобретенной недвижимости визу сроком на 2 года или на 10 лет («Золотая виза») с правом последующего продления и наслаждаться жизнью в ОАЭ не тревожась о сроках пребывания на территории страны. Также собственник резиденции получает возможность при необходимости сдавать её в аренду и получать доход от своих вложений.

Показатели средней рентабельности инвестиций в данном проекте Safa Two составляет от 8%. С течением времени этот показатель будет только расти. На него оказывает влияние степень готовности объекта и уровень развития района. Для получения быстрого инвестиционного дохода можно выгодно перепродать недвижимость не дожидаясь завершения строительства. А также выгодно перепродать проект еще на стадии строительства и получить быстрый инвестиционный доход.

Наши эксперты помогут разобраться во всех волнующих вас вопросах и помогут в приобретении недвижимости в Дубае!

Показать

На текущий момент мы обновляем данные по этому проекту, они появятся в ближайшее время

Особенности
  • Балкон
  • Бассейн
  • Вид на город
  • Вид на набережную
  • Кафе и рестораны
  • Кондиционер
  • Консьерж-сервис
  • Лифт
  • Магазин
  • Мебель
  • Охрана
  • Панорамные окна
  • Парковка
  • Сад
  • СПА
  • Спортзал
  • Терраса
  • Услуги горничной

Расположение

Safa Two находится в удобной транспортной доступности на машине до:

  • аэропорта Дубая 15 минут;
  • ближайшие районы Business Bay, Downtown Dubai и Jumeirah;
  • City Walk и Box Park 5 минут;
  • The Dubai Mall и Oasis Mall 10 минут;
  • Mercato Mall 15 минут;
  • школа Jumeirah English Speaking School (JESS Jumeirah) 5 минут;
  • школа Safa British School 5 минут;
  • школа GEMS Jumeirah Primary School 5 минут;
  • Jumeirah International Nursery, а также другие школы и детские сады 5 минут;
  • прямой выезд на Sheikh Zayed Road, а также другие автотрассы;
  • больница Medcare (24/7)  5 минут;
  • общественный пляж Jumeirah Beach 5 минут;
  • пляж Kite Beach 10 минут.
15 минут
Аэропорт DXB
15 минут
Дубай Марина
5 минут
Пляж Джумейра
10 минут
ТЦ Дубай Молл
Карта
3D
Район проекта

Al Safa

Al Safa

Al Safa – преимущественно семейный жилой район, на территории которого расположен большой парк Safa с площадками для спортивных игр и картингом. Рядом расположен водный канал Дубая с искусственным водопадом и неоновой подсветкой.

Подробнее о районе
Al Safa

Фотогалерея

Порядок платежей

5%
первоначальный
взнос
40%
во время
строительства
55%
при передаче
ключей
Damac Properties (Дамак)
Застройщик проекта

Damac Properties (Дамак)

Damac Properties (Дамак)

DAMAC — один из крупных застройщиков на Ближнем Востоке с 20-летним опытом. Компания активно реализует проекты не только в ОАЭ, но и на международном рынке: в Саудовской Аравии, Иордании, Ливане, Катаре, Турции и Великобритании. DAMAC Properties — лидер рынка по застройке ЖК премиум-класса, масштабных торговых и рекреационных центров в Дубае.

Подробнее о застройщике
Оставить заявку
на обратный звонок Свяжемся с вами в ближайшее
время для консультации

    Другие предложения в этом проекте
    Safa Two
    от 206 909 $
    Студия 33 кв.м. в ЖК Safa Two

    Студия 33 кв.м. в ЖК Safa Two элитном небоскрёбе, расположенном в районе Al Safa в Дубае

    33 м²
    1 спальня
    Al Safa
    Safa Two
    от 760 120 $
    3-спальные апартаменты 131 кв.м. в ЖК Safa Two

    3-спальные апартаменты 131 кв.м. в ЖК Safa Two элитном небоскрёбе, расположенном в районе Al Safa в Дубае

    131 м²
    3 спальни
    Al Safa
    Safa Two
    от 620 500 $
    2-спальные апартаменты 95 кв.м. в ЖК Safa Two

    2-спальные апартаменты 95 кв.м. в ЖК Safa Two элитном небоскрёбе, расположенном в районе Al Safa в Дубае

    95 м²
    1 спальня
    Al Safa
    Safa Two
    от 454 680 $
    1-спальные апартаменты 61 кв.м. в ЖК Safa Two

    1-спальные апартаменты 61 кв.м. в ЖК Safa Two элитном небоскрёбе, расположенном в районе Al Safa в Дубае

    61 м²
    1 спальня
    Al Safa
    Посмотреть все
    Что происходит с рынком Дубая прямо
    сейчас? Делимся аналитикой и
    прогнозами по основным районам
    Скачайте наш аналитический обзор
    "Карта рисков 2026"
    Скачать статью
    Предложения в других проектах
    DAMAC Beverly Hills Drive Villas
    от 3 629 760 $
    7-спальная вилла 676 кв.м. в ЖК Beverly Hills Drive

    7-спальная вилла 676 кв.м. в ЖК Beverly Hills Drive - роскошный и элегантный проект от именитого застройщика DAMAC состоит из эксклюзивной коллекции...

    676 м²
    7 спален
    DAMAC Hills
    Como Residences
    от 5 717 000 $
    2-спальные апартаменты 415 кв.м в ЖК Como Residences

    Просторные апартаменты площадью 415 кв.м в элитном ЖК от именитого застройщика Nakheel, прямо на Palm Jumeirah.

    415 м²
    2 спальни
    Palm Jumeirah
    Crest Grande
    от 647 500 $
    2-спальные апартаменты 122 кв.м в ЖК Crest Grande

    2-спальные апартаменты 122 кв.м в ЖК Crest Grande расположенным в элитном создаваемом районе Sobha Hartland

    122 м²
    2 спальни
    Sobha Hartland
    DAMAC Elegance Tower
    от 816 800 $
    2-спальные апартаменты 106 кв. м в ЖК DAMAC Elegance Tower

    2-спальные апартаменты площадью 106 кв. м с эксклюзивным дизайном в премиальном ЖК DAMAC Elegance Tower.

    106 м²
    2 спальни
    Downtown
    Como Residences
    от 11 888 000 $
    4-спальные апартаменты 863 кв.м в ЖК Como Residences

    Просторные апартаменты премиум-класса площадью 863 кв.м в ЖК Como Residences на острове Palm Jumeirah.

    863 м²
    4 спальни
    Palm Jumeirah
    LIV Marina
    от 1 080 000 $
    3-спальные апартаменты 197 кв.м. в ЖК LIV Residence

    3-спальные апартаменты 197 кв.м. в ЖК LIV Residence премиальном жилом 44-этажном комплексе, который расположен в районе Dubai Marina

    197 м²
    3 спальни
    Dubai Marina
    Noora Tower
    от 435 000 $
    1-спальные апартаменты 74 кв.м в ЖК Noora Tower

    1-спальные апартаменты в самом центре Дубая. Уникальностью Noora Tower является его расположение.ЖК окружен озелененными территориями с уникальным...

    74 м²
    1 спальня
    Business Bay
    Canal Heights
    от 1 218 000 $
    2-спальные апартаменты 136 кв.м в ЖК Canal Heights

    2-спальные апартаменты площадью 136 кв.м в ЖК Canal Heights с премиальными удобствами в энергичном центре Дубая, районе Business Bay.

    136 м²
    2 спальни
    Business Bay
    HILLS PARK
    от 392 500 $
    1-спальные апартаменты 63 кв.м. в ЖК Hills Park

    1-спальные апартаменты 63 кв.м. в ЖК Hills Park расположенного в зелёной парковой зоне Дубая в районе Dubai Hills Estate района Mohammed Bin Rashid...

    63 м²
    1 спальня
    Dubai Hills
    St. Regis Residences
    от 892 978 $
    2-спальные апартаменты 119 кв.м. в ЖК St. Regis Residences

    2-спальные апартаменты 119 кв.м. в ЖК St. Regis Residences элитном комплексе, который состоит из двух небоскрёбов, расположенных в районе Downtown

    119 м²
    2 спальни
    Downtown